工业房屋建筑结构优化设计探析
摘要
关键词
建筑结构设计;优化方法;房屋结构设计
正文
0. 引言
房屋建筑的安全性、适用性、美观性始终是人们追求的。所以传统的建筑设计在为了保证上述要求的前提下,通过牺牲经济性、结构布置的均匀对称性、来达到目的。而建筑结构优化设计,是在保证业主使用功能的前提下,通过结构方案的优化、结构计算的优化、材料使用的优化等手段,使投资者用最少的钱得到较为合理的、较为经济的建筑物。
下面我从以下几个方面谈一下本人对建筑优化设计的看法。
1.结构方案的选择
对于任何一个建筑都有很多建筑结构设计方案,选择哪种设计方案是决定一个建筑是否经济合理的成败因素。所以,任何一个建筑物都应该选择结构体系简单,受力和传力途径简单明了的方案。这样不仅计算模型建立简单,计算正确率也会比较高。
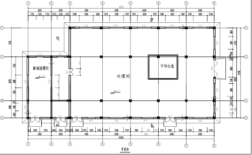
工程实例:本工程为除盐水泵站,建筑分为两部分:一部分为酸碱储罐间,高度为5.500m;一部分为主车间高度9.600m,主车间女儿墙高0.6m,主车间还有一个地下水池深5.300m,抗震设防烈度7度,场地类别2类,图示如下

实例分析:本设计原设计方案是,酸碱储罐间砖混结构、主车间预制排架结构。但是由于砖混整体性差,墙的高厚比约束以及预制排架结构还需要现场制作预制柱等原因,故原设计方案改为了酸碱储罐间和主车间均采用框架结构,两者建筑之间设沉降缝的结构方案,从传力的角度分析:板传给次梁,次梁传给主梁,主梁传给柱子,柱子传给基础;从结构布置角度分析:两个建筑分离,是建筑避免结构的不规则布置,是刚度均匀分配。
2.结构优化设计的步骤
对房屋结构整体进行必要的优化设计时候,可以分成三步进行建筑结构的设计优化。下面将对每一步骤进行详细的介绍:
(1)建立结构模型
建筑模型建立时,应该在符合实际的前提下,去除次要的条件,简化模型的建立工作.
(2)要对设计变量进行合理的选择
通常在对设计变量进行选择时,我们把对建筑结构影响的主要参数作为设计变量。如目标控制的相关参数(损失的期望 C2 和结构的造价C1)和约束控制相关参数(结构的可靠度PS)等;然而还有一些影响不是太大,其变化范围也不是很大或者由局部性以及结构的相关要求就能够满足相应的设计要求的一些参数,我们可以用预定参数来表示,这样能够使得我们的计算量均大大减小。
(3) 对目标函数进行确定
在进行结构设计优化的时候,我们应通过多次试算来寻找一组能够满足预定条件的构件截面尺寸、钢筋的截面积以及相应的失效的概率的函数,使得工程造价最少。
3.约束条件的确定
在房屋结构的优化设计过程中,必须在确保结构可靠度的前提下,来确定优化设计过程中的约束条件。
优化设计中的约束条件主要包括裂缝宽度约束、结构强度约束、尺寸约束、构件单元约束、应力约束、结构体系约束、从可靠指标约束到确定性约束条件以及从正常使用极限状态下的弹性约束到最终极限状态的弹塑性约束等。
在进行结构设计的时候,我们必须对目标约束条件与实际的约束条件进行相应的比较与分析,再确保每个约束条件都必须满足相关要求,以实现最佳的设计。
4.结果分析
我们必须对相应的计算结果进行必要的分析比较,这一步骤在建筑结构设计优化中尤其重要。合理的优化设计方案,不仅从设计的角度趋于合理,而且在施工技术方面也有更好的操作性。这样就不会在施工方面增大施工投资。
5.结构优化设计的注意事项
(1)结构优化设计应注意初步方案的选定,初步设计方案应结合建筑类型、地质水文的情况、建筑高度等确定,他的确定直接会影响到工程的造价。所以我们应该注意,初步方案要全方位的考虑各方因素,来做到结构合理、功能齐全、经济适用的结构形式。
(2)概念设计结合细部结构设计优化
在没有具体数值量化的情况下,可以使用概念设计。例如,对地震的烈度进行设防时,由于它存在这不确定的因素,所以我们无法找到与实际相符合的计算式,所以在进行设计优化的时候我们可以使用概念设计的方法,把相应的数值作为参考与辅助相关的依据。同时在设计过程中,相关结构设计人员必须合理使用结构设计优化的方法,从而达到最佳的效果。在设计过程中必须对局部结构进行设计优化,例如,在现浇的混凝土异形的板料,其拐弯处容易开裂,可以对板进行分割,变成几个矩形板,然后合理选择钢筋,在满足其结构的基本要求条件下,达到安全又经济的目的。
(3)下部地基基础结构的设计优化
在地基基础的结构设计优化中,我们必须选取合适的方案,如何选择基础类型呢,可通过下面的实例简单阐述选择基础类型的条件。
由上述可知选择基础方案,可从以下几个方面考虑
①上部结构竖向分体系的荷载传递
②地基承载力是否大于上部传递下来的荷载
③持力层下是否有下卧层及其稳定性
除此上述条件外,还包括基础总沉降量和差异沉降量的控制、地下水位及其防水要求、基础施工给周边现有建筑带来的不利影响、基础的造价等
参考文献:
[1] 沈汝伟.对建筑结构优化设计的探讨[J]. 煤炭技术,2011( 04) : 242- 243.
[2] 付建利.探讨房屋建筑结构优化设计[J]. 中华民居,2012( 19) : 41-42.
[3] 佟月强,郝 明.试论结构设计优化技术及在房屋结构设计中的应用[J]. 科技与企业,2012(04):05-06.
...